Kabelrulle R-105 bygger på en beprövad design, särskilt anpassad för utläggning av fiberkabel i tuffa miljöer. Rulle 105 är tillverkad i plåt med lättviktsgavlar och går att få i färgerna grön, svart eller sand beroende på användningsområde. Vikten är endast 3,5 kg vilket gör den utmärkt för t.ex. ryggburen kabelutläggning. Rulle 105 säljs separat men kan också levereras tillsammans med Micropols kabelmes. Vi kundanpassar även Rulle 105 efter behov.
Egenskaper
- Kabelvinda för tuffa miljöer
- Kan anpassas efter kundens specifikation
- Testad för strid
- Lagringstemperatur -40°C till +70°C
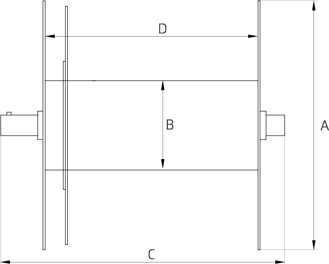
| Artikelnummer | Färg | Material | Kabel diameter (mm) | Maximum kabellängd (m) | A | B | C | D | Vikt utan kabel |
| R-105 |
|
Plåt | 5,0 5,5 6,5 10,0 12,0 |
700 500 350 150 100 |
350 | 125 | 400 | 250 | 3,5 kg |

Kabelvinda R-105
Hjälp att hitta din lösning?
Vårt engagerade team är dedikerat till att ge dig det stöd du behöver och välkomnar dina förfrågningar.
Relaterade produkter
Offert- & informationsförfrågan